Cena:
135 427 Kč / měs
Cena poznámka:
47 430 Kč / měs + DPH
Typ zakázky:
Pronájem
Lokalita:
U Uranie, Praha 7
Plocha:
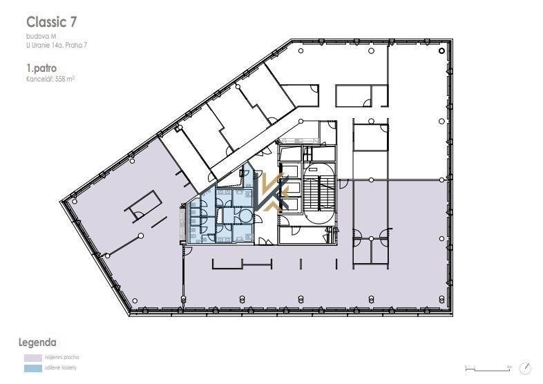
558 m2
Evidenční číslo:
7165

CLASSIC 7 - budova M (558 m2)

Domů  |  Budovy  |  CLASSIC 7 BUSINESS PARK  |  Nabídka
Martin Vacek

Martin Vacek

Podrobné informace

Nabízíme k podnájmu kancelářské prostory v 1. patře o velikosti 558 m2. Podnájem možný pouze do 30.11.2027. Dispozičně: vstupní recepce, 4 zasedací místnosti, 2x open space / kancelář, velká otevřená vybavená kuchyň (lednice, myčka, mikrovlnka), serverovna, sdílené toalety na patře.

Typ nemovitosti:
Komerční
Podtyp nemovitosti:
Kancelářské prostory
Plocha:
558 m2
Patro:
1. patro
photo_1
Tato nabídka je součástí budovy
CLASSIC 7 BUSINESS PARK
photo_1photo_2photo_3photo_4
X

Nastavení cookies: tato webová stránka používá nezbytné soubory cookie k zajištění správného fungování webu a analytické soubory, abychom pochopili, jak se na stránce pohybujete a jaký obsah Vám máme nabídnout. Tyto cookies budou nastaveny až po vašem schválení.Více informací