Cena:
57 500 Kč / měs
Cena poznámka:
5 040 Kč / měs + DPH
Typ zakázky:
Pronájem
Lokalita:
Evropská, Praha 6
Plocha:
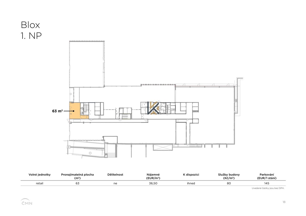
63 m2
Evidenční číslo:
963158

BLOX (63 M2)

Domů  |  Budovy  |  BLOX  |  Nabídka
Elizabeth Tien

Elizabeth Tien

Podrobné informace

Pronájem obchodního prostoru o velikosti 63 m2. Prostor má vstup přímo z chodníku od autobusové zastávky, a je vhodný například pro showroom. Kavárna a gatro provoz je ke zvážení, protože v budově již je. Nett area 62,58 m2, floor share 0,74 m2, Add on 7,75%.

Typ nemovitosti:
Komerční
Podtyp nemovitosti:
Obchodní prostory
Plocha:
63 m2
Patro:
Přízemí
photo_1
Tato nabídka je součástí budovy
BLOX
photo_1photo_2photo_3photo_5
X

Nastavení cookies: tato webová stránka používá nezbytné soubory cookie k zajištění správného fungování webu a analytické soubory, abychom pochopili, jak se na stránce pohybujete a jaký obsah Vám máme nabídnout. Tyto cookies budou nastaveny až po vašem schválení.Více informací