Cena:
80 550 Kč / měs
Cena poznámka:
19 690 Kč / měs + DPH
Typ zakázky:
Pronájem
Lokalita:
Sokolovská, Praha 8
Plocha:
179 m2
Evidenční číslo:
968921

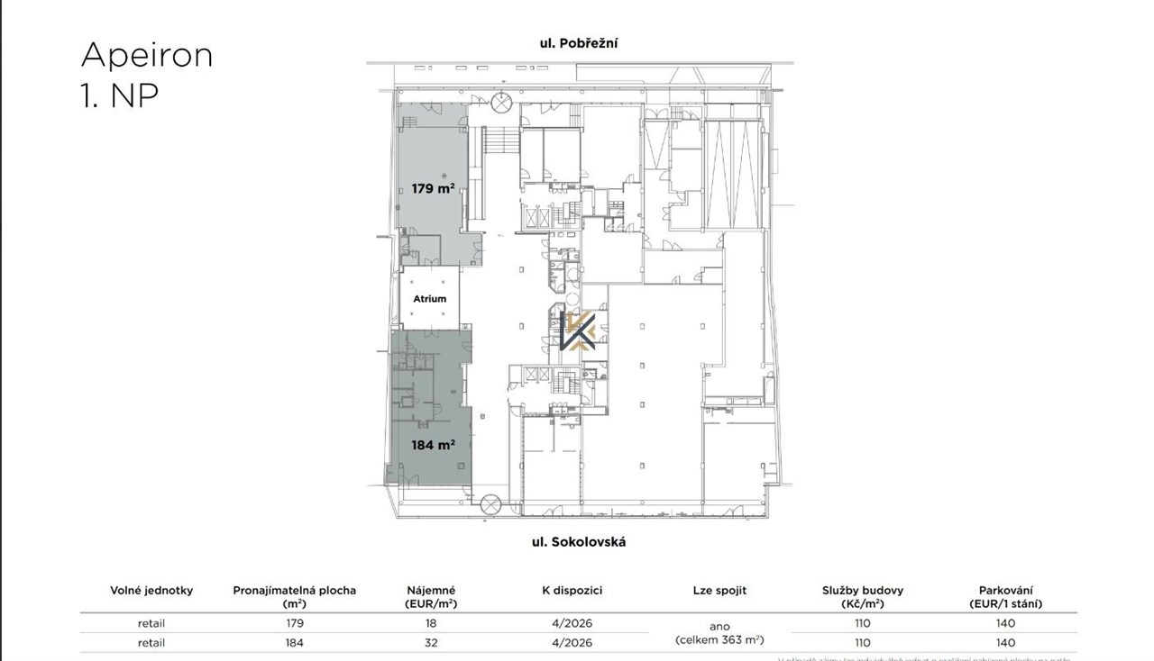
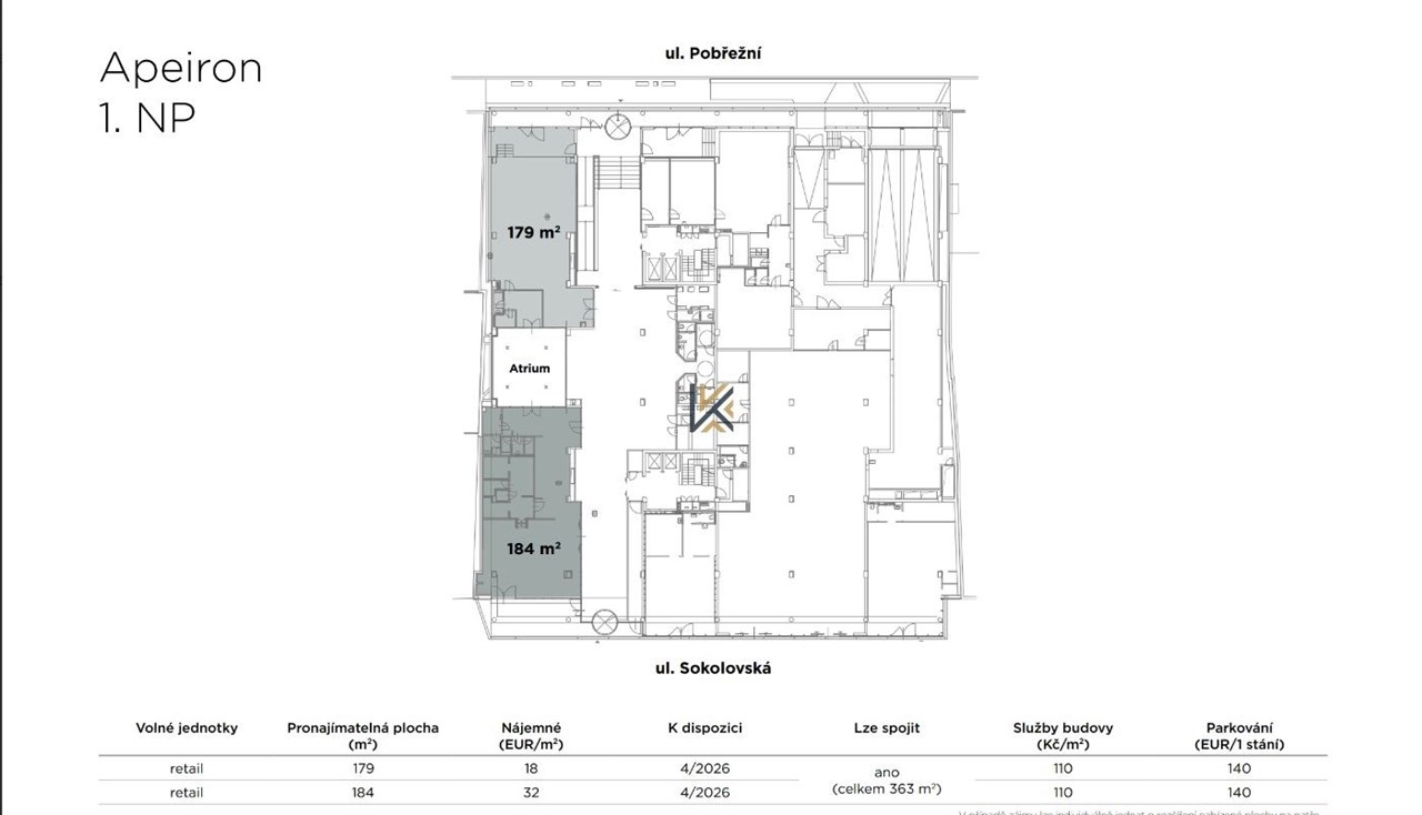
APEIRON (179 M2)

Domů  |  Budovy  |  APEIRON OFFICE CENTER  |  Nabídka
Elizabeth Tien

Elizabeth Tien

Podrobné informace

Pronájem obchodní jednotky 179 m2 se vstupem z Pobřežní ulice a pasáže budovy Apeiron. Volné od 0405/2026.

Typ nemovitosti:
Komerční
Podtyp nemovitosti:
Obchodní prostory
Plocha:
179 m2
Patro:
Přízemí
photo_1
Tato nabídka je součástí budovy
APEIRON OFFICE CENTER
photo_1photo_2photo_3photo_6
X

Nastavení cookies: tato webová stránka používá nezbytné soubory cookie k zajištění správného fungování webu a analytické soubory, abychom pochopili, jak se na stránce pohybujete a jaký obsah Vám máme nabídnout. Tyto cookies budou nastaveny až po vašem schválení.Více informací